Casetta Hobby con pareti preassemblate in perlina d'abete naturale 146x146cm
Riferimento: 62178
GARANZIA 2 ANNI
PAGAMENTI SICURI
RESO GRATUITO

Casetta Hobby, un prodotto di alta qualità interamente realizzato in Italia per offrire una soluzione di costruzione semplice e resistente nel tempo. Le pareti in perlina d'abete naturale spessore 19mm, non trattate, sono irrobustite con un ancoraggio delle perline negli angoli, garantendo solidità e durabilità alla struttura.
La porta singola a battente, con finestra fissa in plexiglass, conferisce un tocco di eleganza e funzionalità, consentendo l'ingresso di luce naturale e ventilazione all'interno della casetta.
Le falde del tetto sono realizzate in pannello OSB3 spessore 12mm e sono coperte da una guaina ardesiata grigia da 3mm, assicurando protezione dagli agenti atmosferici e una perfetta tenuta nel tempo.
Il pavimento, anch'esso in pannello OSB3 spessore 12mm, è dotato di listelli d'appoggio impregnati in autoclave, garantendo resistenza all'umidità e una superficie solida su cui appoggiarsi.
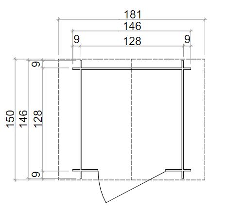
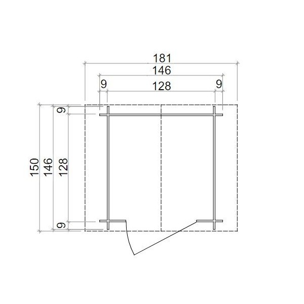
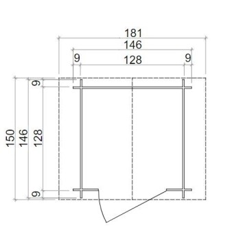
La Casetta BH19 Hobby, dalle dimensioni di 146x146 cm, è certificata PEFC, garantendo il rispetto delle pratiche sostenibili nella gestione delle foreste.
CARATTERISTICHE:
- Prodotta in Italia
- Dimensioni 146x146 cm
- Pareti in perlina d'abete naturale sp.19mm non trattate,
- Irrobustite con ancoraggio delle perline negli angoli;
- Porta singola a battente con finestra fissa in plexiglass;
- Falde tetto in OSB3 spessore 12mm, copertura con guaina ardesiata grigia da 3mm;
- Pavimento in OSB3 spessore 12mm, con listelli d'appoggio impregnati in autoclave;
- Fornita in kit comprensivo di ferramenta e istruzioni di montaggio